Listed by of EXP Realty (Cell: 978-340-7312)

Listing Sold by Greenwald Realty Group
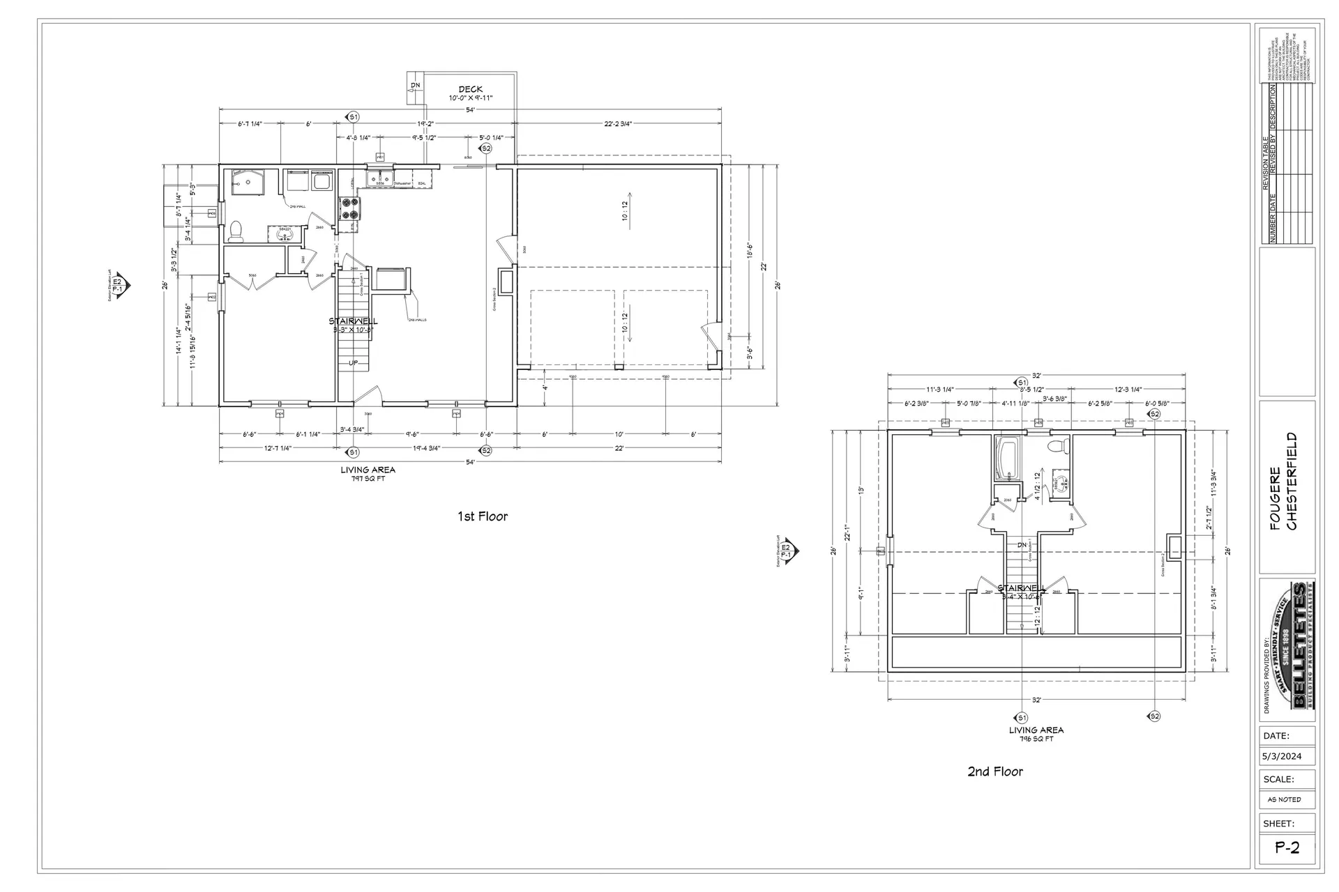
Looking for peace and solitude?? Look no further, this beautiful location is exactly what you need. This spacious three bedroom two bath home with attached garage will be a wonderful addition to this lovely property. How exciting for this rare opportunity to purchase a home in Chesterfield NH, with a location that is convenient to both Keene and Brattleboro. This NEW CONSTRUCTION home has a first floor primary bedroom, first floor laundry, a wonderful open kitchen with all wood cabinets, recessed lighting and granite countertops along with a nice dining area. The living room is open to the kitchen/dining area for easy entertaining. This is a great floorplan. The home can be ready for you in an estimated 12 weeks from the date of contract. First floor has Vinyl Plank Flooring with carpet in the bedrooms and on the stairs to the second floor. Take a look at the construction specs attached to the listing. You will see this is a quality builder with the buyers needs at the forefront of his building plan. This one won't last long, get in quick before it gets scooped up. This same house is under construction at another location within 30 minutes and can be viewed. This is an energy star home.

Listing Tools

Property Details of 45 Farr Road

Property Details

Interior Features

Utilities and Appliances

Map Location

Broker Reciprocity 

Copyright 2025 PrimeMLS, Inc. All rights reserved. This information is deemed reliable, but not guaranteed. The data relating to real estate displayed on this display comes in part from the IDX Program of PrimeMLS. The information being provided is for consumers’ personal, non-commercial use and may not be used for any purpose other than to identify prospective properties consumers may be interested in purchasing. Data last updated December 9, 2025 2:22 AM EST

 

Hi there! How can we help you?

Contact us using the form below or give us a call.

Send Us A Message:

I agree to receive marketing and customer service calls and text messages from Galloway Real Estate. To opt out, you can reply 'stop' at any time or click the unsubscribe link in the emails. Consent is not a condition of purchase. Msg/data rates may apply. Msg frequency varies. Privacy Policy.

Do not fill in this field:

This site is protected by reCAPTCHA and the Google Privacy Policy and Terms of Service apply.

Hi there! How can we help you?

Contact us using the form below or give us a call.

Send Us A Message:

Do not fill in this field:

This site is protected by reCAPTCHA and the Google Privacy Policy and Terms of Service apply.

Hi there! How can we help you?

Contact us using the form below or give us a call.

Send Us A Message:

Do not fill in this field:

This site is protected by reCAPTCHA and the Google Privacy Policy and Terms of Service apply.

Do not fill in this field:

This site is protected by reCAPTCHA and the Google Privacy Policy and Terms of Service apply.

Do not fill in this field:

This site is protected by reCAPTCHA and the Google Privacy Policy and Terms of Service apply.

Do not fill in this field:

This site is protected by reCAPTCHA and the Google Privacy Policy and Terms of Service apply.

$

Do not fill in this field:

This site is protected by reCAPTCHA and the Google Privacy Policy and Terms of Service apply.