Listed by Ruth Blais Thompson of Blais & Associates,Realtors
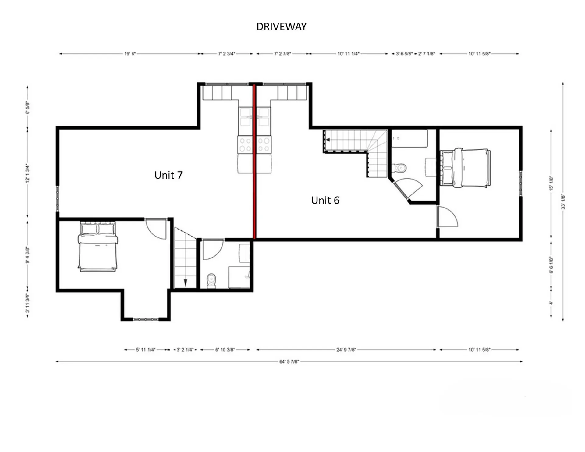
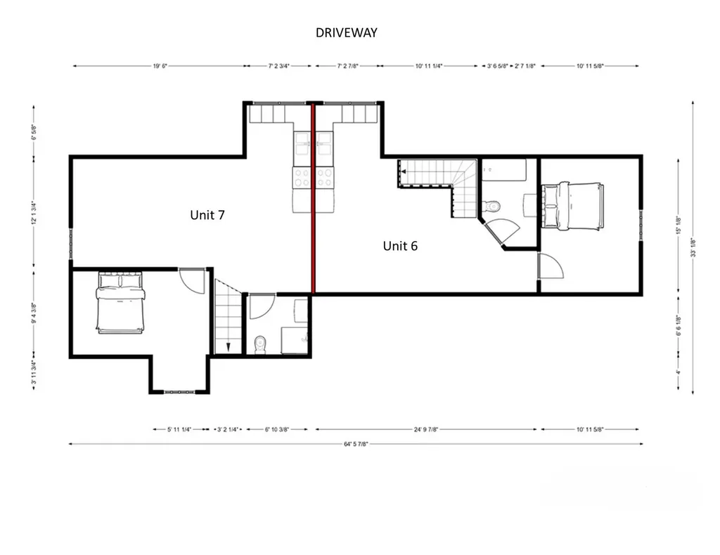
Many of the elegant features remain which makes this a unique investment for a 5-Unit Multi-Family with permits in place for a 7 Unit Multi-Family. The grand oak staircase and paneled walls, intricate filigree wood details, tile fireplaces, stain glass windows and hardwood floors are some of the features that standout among the rest. The 3rd story of the building is app. 1250 sq. feet and an open canvas with views over the landscape. All permits are in place for the construction of 2 additional 1-bedroom apartments. There is also a 2-Car garage that is currently used as storage by the owners, but could potentially be rented. The parking is paved and has space for 11 vehicles. The tenants enjoy the quick 10 minute drive into Keene, or the short walk to the Troy Common where there are many activities. This is an investors opportunity to complete the work that has been approved and become owners of a profitable 7 unit apartment house. Projected net annual income includes garage rental and the 2 additional apartments (proposed floor plan layout in photos). This property was once owned by Ripley family, owners of The Troy Blanket Mill, who had the longest continuous family ownership of a textile manufacture company in NH.

Listing Tools

Property Details of 33 S Main Street

Property Details

Interior Features

Utilities and Appliances

Map Location

Broker Reciprocity 

Copyright 2025 PrimeMLS, Inc. All rights reserved. This information is deemed reliable, but not guaranteed. The data relating to real estate displayed on this display comes in part from the IDX Program of PrimeMLS. The information being provided is for consumers’ personal, non-commercial use and may not be used for any purpose other than to identify prospective properties consumers may be interested in purchasing. Data last updated November 10, 2025 9:40 PM EST

 

Hi there! How can we help you?

Contact us using the form below or give us a call.

Send Us A Message:

I agree to receive marketing and customer service calls and text messages from Galloway Real Estate. To opt out, you can reply 'stop' at any time or click the unsubscribe link in the emails. Consent is not a condition of purchase. Msg/data rates may apply. Msg frequency varies. Privacy Policy.

Do not fill in this field:

This site is protected by reCAPTCHA and the Google Privacy Policy and Terms of Service apply.

Hi there! How can we help you?

Contact us using the form below or give us a call.

Send Us A Message:

Do not fill in this field:

This site is protected by reCAPTCHA and the Google Privacy Policy and Terms of Service apply.

Hi there! How can we help you?

Contact us using the form below or give us a call.

Send Us A Message:

Do not fill in this field:

This site is protected by reCAPTCHA and the Google Privacy Policy and Terms of Service apply.

Do not fill in this field:

This site is protected by reCAPTCHA and the Google Privacy Policy and Terms of Service apply.

Do not fill in this field:

This site is protected by reCAPTCHA and the Google Privacy Policy and Terms of Service apply.

Do not fill in this field:

This site is protected by reCAPTCHA and the Google Privacy Policy and Terms of Service apply.

$

Do not fill in this field:

This site is protected by reCAPTCHA and the Google Privacy Policy and Terms of Service apply.