Listed by Sadie Halliday of EXP Realty (Cell: 603-660-2321)

Listing Sold by EXP Realty
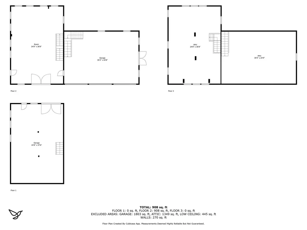
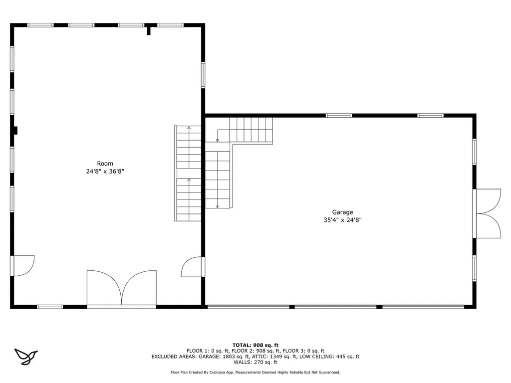
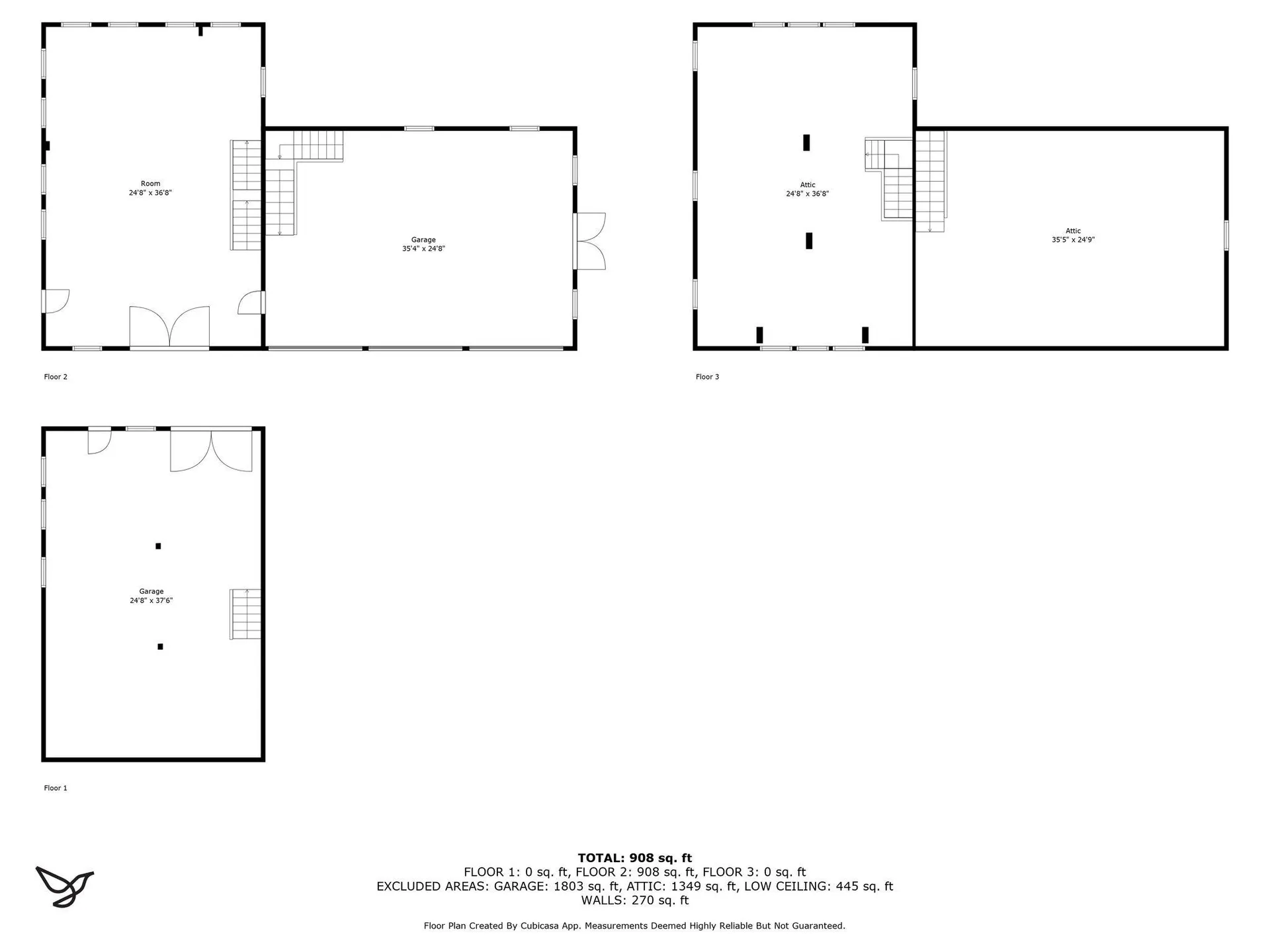
Experience one of Dublin's most breathtaking settings with uninterrupted views of Mount Monadnock. Privately sited at the end of a long, tree-lined drive, this exceptional property blends historic character with thoughtful updates. The 19th-century Cape underwent a 2012 renovation that introduced a sunlit kitchen, stylish bath, and expanded living space. Large Pella windows capture sweeping mountain and garden vistas, while original wide-pine floors, hand-hewn beams, and three fireplaces preserve the home's timeless New England charm. A remarkable post-and-beam barn, constructed from locally sourced timber in 2018-2019, is the centerpiece of the property. With soaring ceilings, abundant natural light, three levels of flexible space, and dramatic 10-foot doors, the barn is designed for versatility. It offers endless potential as a creative studio, workshop, collector's gallery, car storage, or a space for entertaining on a grand scale. The craftsmanship and scale of this structure make it a rare complement to a historic home. The grounds combine natural beauty with privacy: meadows bordered by stone walls and a setting that showcases some of the region's most iconic views. Located in the heart of the Monadnock Region, this property offers a lifestyle that blends beauty, privacy, and endless opportunity. Properties of this caliber are seldom available. Schedule your private tour and experience the unmatched character of this extraordinary Dublin retreat.

Listing Tools

Property Details of 161 Upper Jaffrey Road

Property Details

Interior Features

Utilities and Appliances

Map Location

Broker Reciprocity 

Copyright 2025 PrimeMLS, Inc. All rights reserved. This information is deemed reliable, but not guaranteed. The data relating to real estate displayed on this display comes in part from the IDX Program of PrimeMLS. The information being provided is for consumers’ personal, non-commercial use and may not be used for any purpose other than to identify prospective properties consumers may be interested in purchasing. Data last updated December 9, 2025 2:37 AM EST

 

Hi there! How can we help you?

Contact us using the form below or give us a call.

Send Us A Message:

I agree to receive marketing and customer service calls and text messages from Galloway Real Estate. To opt out, you can reply 'stop' at any time or click the unsubscribe link in the emails. Consent is not a condition of purchase. Msg/data rates may apply. Msg frequency varies. Privacy Policy.

Do not fill in this field:

This site is protected by reCAPTCHA and the Google Privacy Policy and Terms of Service apply.

Hi there! How can we help you?

Contact us using the form below or give us a call.

Send Us A Message:

Do not fill in this field:

This site is protected by reCAPTCHA and the Google Privacy Policy and Terms of Service apply.

Hi there! How can we help you?

Contact us using the form below or give us a call.

Send Us A Message:

Do not fill in this field:

This site is protected by reCAPTCHA and the Google Privacy Policy and Terms of Service apply.

Do not fill in this field:

This site is protected by reCAPTCHA and the Google Privacy Policy and Terms of Service apply.

Do not fill in this field:

This site is protected by reCAPTCHA and the Google Privacy Policy and Terms of Service apply.

Do not fill in this field:

This site is protected by reCAPTCHA and the Google Privacy Policy and Terms of Service apply.

$

Do not fill in this field:

This site is protected by reCAPTCHA and the Google Privacy Policy and Terms of Service apply.