Listed by Denise Thomas of BHG Masiello Keene
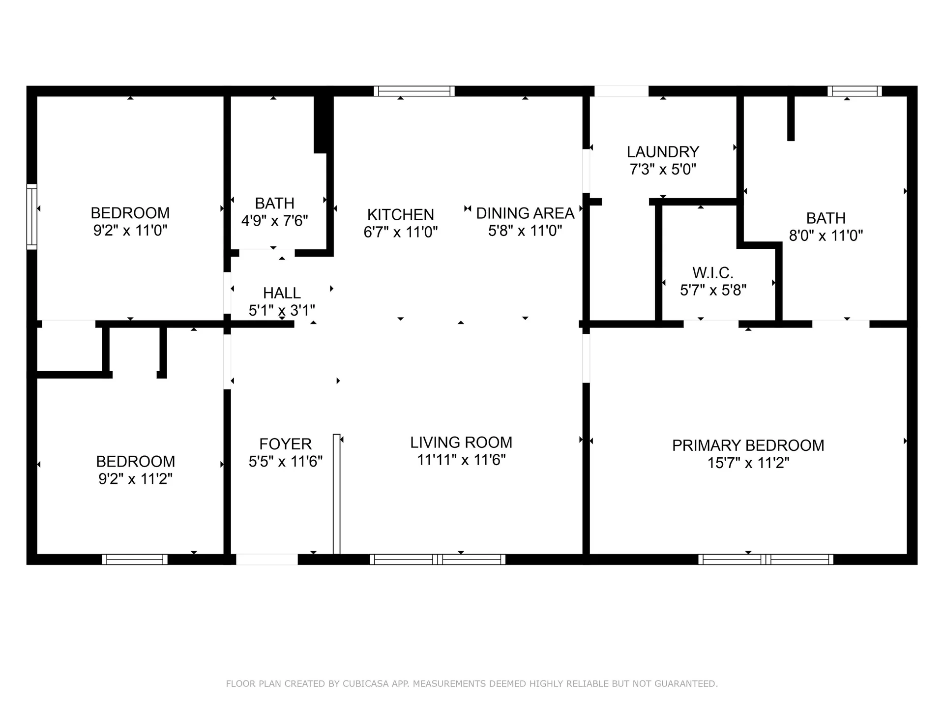
BUYER BACKED OUT and this sweet home if back on the market. No issues with the property......Adorable and well-maintained manufactured home on a desirable corner lot in West Keene's Tanglewood Estates, offering extra distance between you and your neighbors. A welcoming front deck leads into the open living room and kitchen-perfect for relaxing or entertaining. The primary suite, complete with walk-in closet and private bath, sits at one end of the home, while two additional bedrooms and a full bath are located at the other. From the driveway, a secondary entry brings you into a practical mudroom/laundry area. Recent updates include new carpeting, up/down blinds for both privacy and natural light, and freshly taped, mudded, and painted walls for a seamless look. The owner has also added a one-car carport to the two-car driveway for convenience. This inviting home is move-in ready and a must-see. Tanglewood Estates is a friendly, walkable neighborhood that offers a true sense of community. Its West Keene location puts you minutes from shopping, dining, and daily conveniences, as well as outdoor recreation spots like the Keene Rail Trail, Wheelock Park, and local golf courses. Downtown Keene's vibrant shops, restaurants, and seasonal events are just a short drive away, making it easy to enjoy both peaceful living and an active lifestyle.

Listing Tools

Property Details of 87 Sparrow Street

Property Details

Map Location

Broker Reciprocity 

Copyright 2025 PrimeMLS, Inc. All rights reserved. This information is deemed reliable, but not guaranteed. The data relating to real estate displayed on this display comes in part from the IDX Program of PrimeMLS. The information being provided is for consumers’ personal, non-commercial use and may not be used for any purpose other than to identify prospective properties consumers may be interested in purchasing. Data last updated November 8, 2025 11:53 PM EST

 

Hi there! How can we help you?

Contact us using the form below or give us a call.

Send Us A Message:

I agree to receive marketing and customer service calls and text messages from Galloway Real Estate. To opt out, you can reply 'stop' at any time or click the unsubscribe link in the emails. Consent is not a condition of purchase. Msg/data rates may apply. Msg frequency varies. Privacy Policy.

Do not fill in this field:

This site is protected by reCAPTCHA and the Google Privacy Policy and Terms of Service apply.

Hi there! How can we help you?

Contact us using the form below or give us a call.

Send Us A Message:

Do not fill in this field:

This site is protected by reCAPTCHA and the Google Privacy Policy and Terms of Service apply.

Hi there! How can we help you?

Contact us using the form below or give us a call.

Send Us A Message:

Do not fill in this field:

This site is protected by reCAPTCHA and the Google Privacy Policy and Terms of Service apply.

Do not fill in this field:

This site is protected by reCAPTCHA and the Google Privacy Policy and Terms of Service apply.

Do not fill in this field:

This site is protected by reCAPTCHA and the Google Privacy Policy and Terms of Service apply.

Do not fill in this field:

This site is protected by reCAPTCHA and the Google Privacy Policy and Terms of Service apply.

$

Do not fill in this field:

This site is protected by reCAPTCHA and the Google Privacy Policy and Terms of Service apply.