Listed by Jim Weidner of EXP Realty (Cell: 603-491-6993)
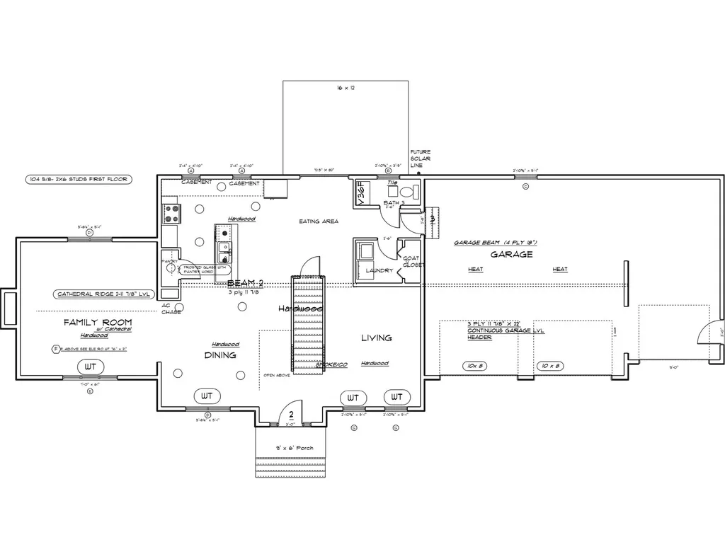
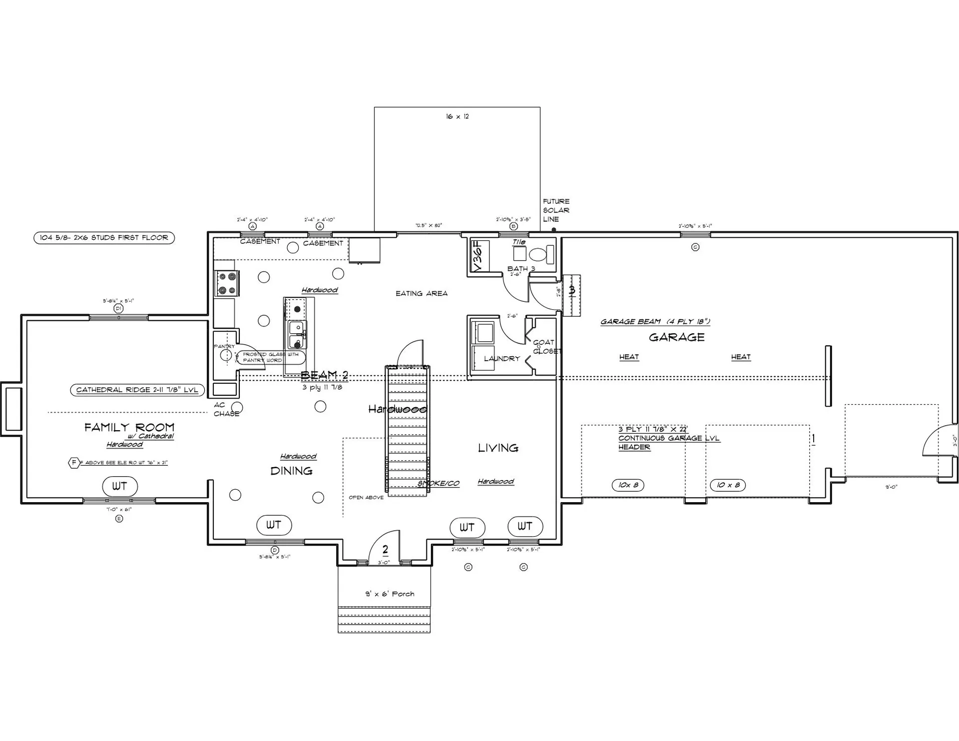
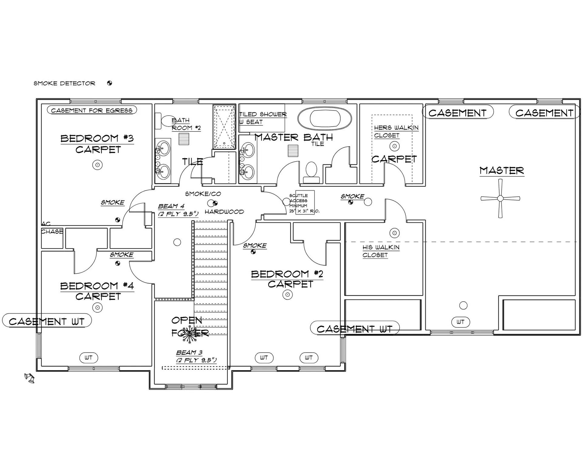
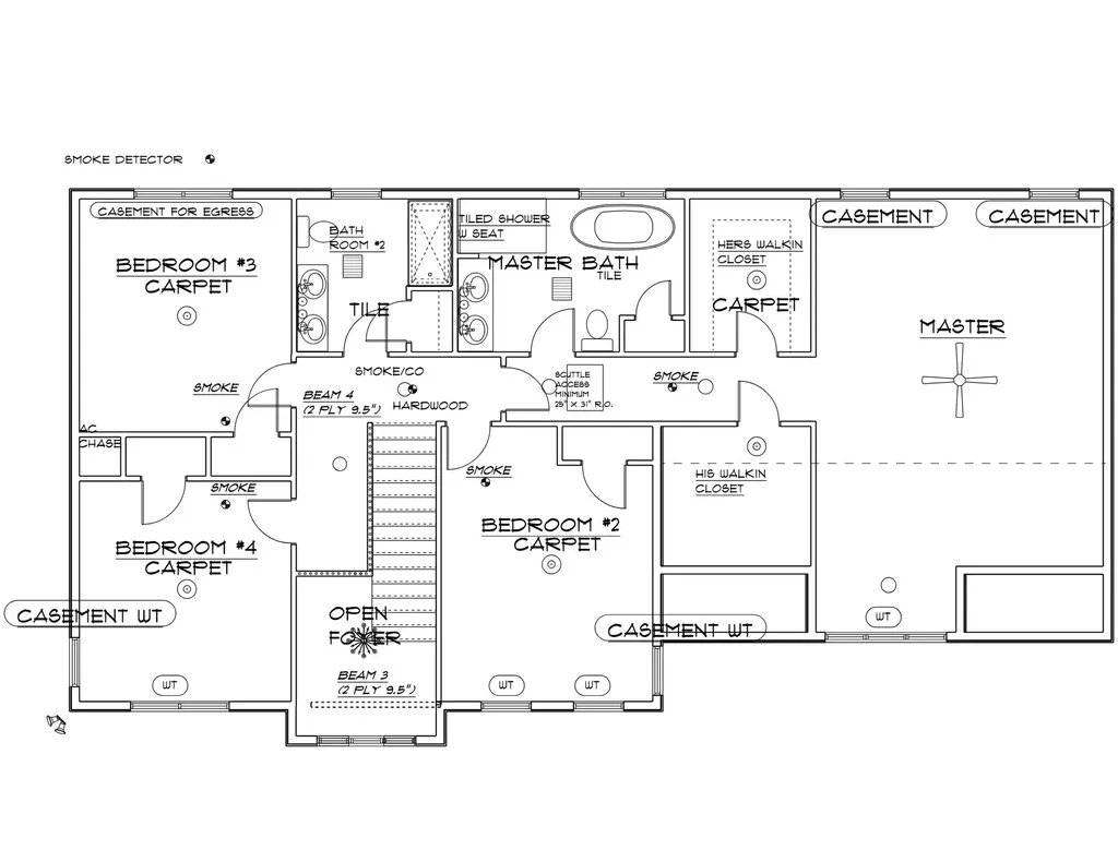
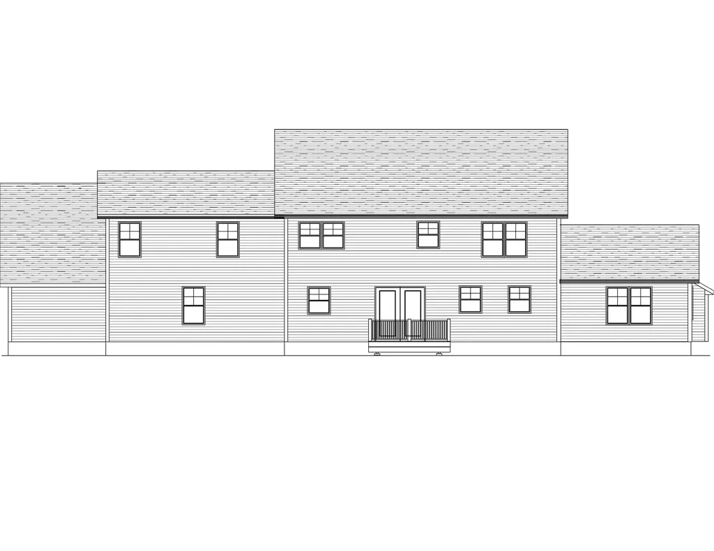
Introducing Stoney Ridge Estates-a brand-new 15-lot gated neighborhood in picturesque Rindge, NH, known for its scenic charm, strong community, and proximity to the Massachusetts line. This to-be-built custom Colonial offers over 3,000 sq. ft. on a 1-acre lot, complete with a 3-car garage and convenient access to local shops, restaurants, and commuter routes. The home's open design highlights a chef's kitchen with center island and stainless steel appliances, seamlessly connected to the dining and living areas. A gas fireplace adds warmth, while the deck off the back creates an inviting outdoor retreat. The primary suite feels like a getaway, featuring a tiled shower, soaking tub, and his & hers spacious walk-in closets. Three additional bedrooms and a full bath sit on the opposite wing for privacy. A full basement provides abundant storage or future finished space. Located just 1 hour to Manchester-Boston Regional Airport and 1.5 hours to Logan Airport, this home blends style, space, and convenience in a truly beautiful setting.

Listing Tools

Property Details of Lot 2 Saybrook Drive

Property Details

Interior Features

Utilities and Appliances

Map Location

Broker Reciprocity 

Copyright 2025 PrimeMLS, Inc. All rights reserved. This information is deemed reliable, but not guaranteed. The data relating to real estate displayed on this display comes in part from the IDX Program of PrimeMLS. The information being provided is for consumers’ personal, non-commercial use and may not be used for any purpose other than to identify prospective properties consumers may be interested in purchasing. Data last updated November 8, 2025 5:08 PM EST

 

Hi there! How can we help you?

Contact us using the form below or give us a call.

Send Us A Message:

I agree to receive marketing and customer service calls and text messages from Galloway Real Estate. To opt out, you can reply 'stop' at any time or click the unsubscribe link in the emails. Consent is not a condition of purchase. Msg/data rates may apply. Msg frequency varies. Privacy Policy.

Do not fill in this field:

This site is protected by reCAPTCHA and the Google Privacy Policy and Terms of Service apply.

Hi there! How can we help you?

Contact us using the form below or give us a call.

Send Us A Message:

Do not fill in this field:

This site is protected by reCAPTCHA and the Google Privacy Policy and Terms of Service apply.

Hi there! How can we help you?

Contact us using the form below or give us a call.

Send Us A Message:

Do not fill in this field:

This site is protected by reCAPTCHA and the Google Privacy Policy and Terms of Service apply.

Do not fill in this field:

This site is protected by reCAPTCHA and the Google Privacy Policy and Terms of Service apply.

Do not fill in this field:

This site is protected by reCAPTCHA and the Google Privacy Policy and Terms of Service apply.

Do not fill in this field:

This site is protected by reCAPTCHA and the Google Privacy Policy and Terms of Service apply.

$

Do not fill in this field:

This site is protected by reCAPTCHA and the Google Privacy Policy and Terms of Service apply.