Listed by Carole Blondeau of BHG Masiello Concord

Listing Sold by LAER Realty Partners/Chelmsford
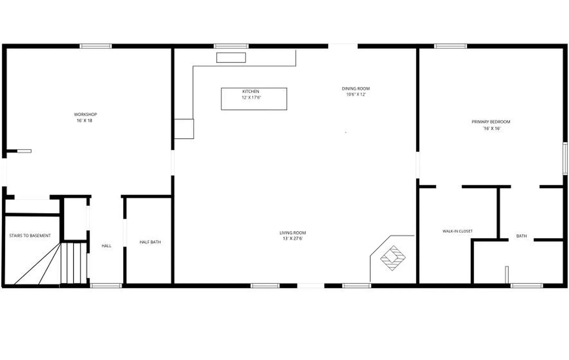
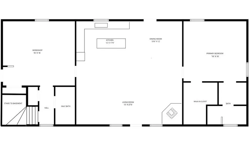
Private 94-Acre Property with Home to be Finished. Built in 2015 this ranch offers an exceptional opportunity for a new owner to create their dream property. The home features cathedral ceilings throughout, with interior walls constructed from OSB panels at standard height. The layout includes a primary bedroom with ensuite bath and walk-in closet, plus a second room designed as a workshop that could be converted into a bedroom if desired. The kitchen and baths are framed with cabinets and fixtures in place but not finished. Ceilings remain open with exposed insulation. Heating is provided by wall-mounted electric units and a wood stove in the living room. Vinyl siding has been partially installed, with some additional materials in the basement (mainly J-trim and soffit). The land is the centerpiece of this offering. The parcel includes a variety of tree species, white pine, hemlock, and red oak. The lot was logged in the 1990s but has since naturally grown back. In the open areas, there are a few existing setups for target practice and a great firepit area. Additional highlights include a large two-door barn/garage with loft and a once-loved garden area ready to be revived. The property also includes nearly 3,000 feet of frontage on a one-lane, privately maintained gravel road (maintenance agreement TBD). Per the site plan/land use map, about one acre is not enrolled in current use. This is an estate sale, and closing will be contingent on probate approval.

Listing Tools

Property Details of 237 Halls Pond Road

Property Details

Interior Features

Utilities and Appliances

Map Location

Broker Reciprocity 

Copyright 2026 PrimeMLS, Inc. All rights reserved. This information is deemed reliable, but not guaranteed. The data relating to real estate displayed on this display comes in part from the IDX Program of PrimeMLS. The information being provided is for consumers’ personal, non-commercial use and may not be used for any purpose other than to identify prospective properties consumers may be interested in purchasing. Data last updated April 20, 2026 12:27 PM EDT

 

Hi there! How can we help you?

Contact us using the form below or give us a call.

Send Us A Message:

I agree to receive marketing and customer service calls and text messages from Galloway Real Estate. To opt out, you can reply 'stop' at any time or click the unsubscribe link in the emails. Consent is not a condition of purchase. Msg/data rates may apply. Msg frequency varies. Privacy Policy.

Do not fill in this field:

This site is protected by reCAPTCHA and the Google Privacy Policy and Terms of Service apply.

Hi there! How can we help you?

Contact us using the form below or give us a call.

Send Us A Message:

Do not fill in this field:

This site is protected by reCAPTCHA and the Google Privacy Policy and Terms of Service apply.

Hi there! How can we help you?

Contact us using the form below or give us a call.

Send Us A Message:

Do not fill in this field:

This site is protected by reCAPTCHA and the Google Privacy Policy and Terms of Service apply.

Do not fill in this field:

This site is protected by reCAPTCHA and the Google Privacy Policy and Terms of Service apply.

Do not fill in this field:

This site is protected by reCAPTCHA and the Google Privacy Policy and Terms of Service apply.

Do not fill in this field:

This site is protected by reCAPTCHA and the Google Privacy Policy and Terms of Service apply.

$

Do not fill in this field:

This site is protected by reCAPTCHA and the Google Privacy Policy and Terms of Service apply.