Listed by Lisa Stone of Keller Williams Realty Metro-Keene
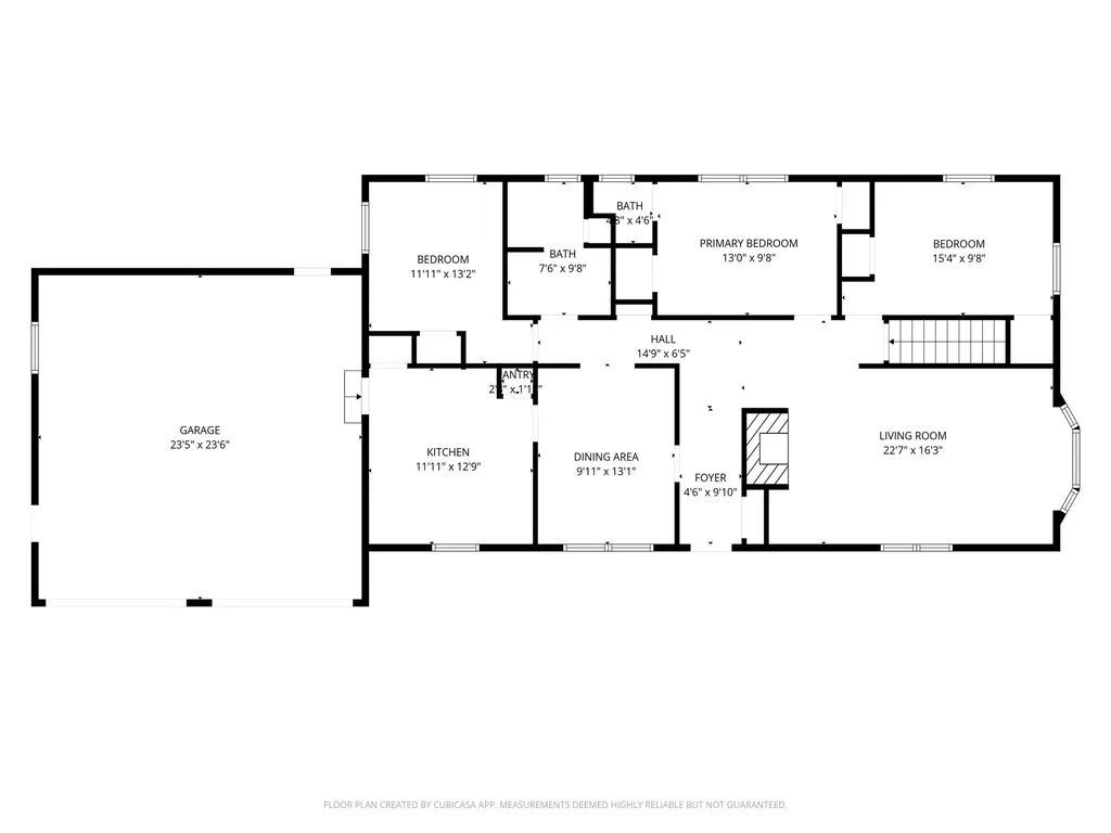
Probate as allowed the sale to progress. This is a short sale and the list price is the lowest it can go! A prime opportunity awaits a motivated buyer or investor in one of Peterborough's most desirable, well-established neighborhoods. This classic 1960s Ranch, boasting great bones and 1,330 square feet of single-level living, is ideally located close to schools and the vibrant downtown area, offering tremendous potential for future equity. The home features three bedrooms, one and a half bathrooms, and a practical two-car attached garage. Interior details include attractive oak hardwood floors throughout the main living areas and a traditional wood-burning fireplace in the living room, adding warmth and character. Practical updates include the installation of vinyl windows approximately ten years ago. The home will soon need a new roof and a new boiler, and the exterior requires new paint. Due to its current condition and the fact that the seller is unable to commit to any repairs (as the property is subject to a reverse mortgage), it is highly unlikely to qualify for FHA or VA financing; buyers should plan for a cash purchase or conventional renovation loan. This is an excellent chance for a cash buyer or contractor to renovate and customize a solid home in a premium location. Location! Location! OPEN HOUSE SUNDAY 2/1 from 2-4. Only Showing! Offers reviewed on Monday. See Private remarks.

Listing Tools

Property Details of 23 Currier Avenue

Property Details

Interior Features

Utilities and Appliances

Map Location

Broker Reciprocity 

Copyright 2026 PrimeMLS, Inc. All rights reserved. This information is deemed reliable, but not guaranteed. The data relating to real estate displayed on this display comes in part from the IDX Program of PrimeMLS. The information being provided is for consumers’ personal, non-commercial use and may not be used for any purpose other than to identify prospective properties consumers may be interested in purchasing. Data last updated February 8, 2026 1:07 AM EST

 

Hi there! How can we help you?

Contact us using the form below or give us a call.

Send Us A Message:

I agree to receive marketing and customer service calls and text messages from Galloway Real Estate. To opt out, you can reply 'stop' at any time or click the unsubscribe link in the emails. Consent is not a condition of purchase. Msg/data rates may apply. Msg frequency varies. Privacy Policy.

Do not fill in this field:

This site is protected by reCAPTCHA and the Google Privacy Policy and Terms of Service apply.

Hi there! How can we help you?

Contact us using the form below or give us a call.

Send Us A Message:

Do not fill in this field:

This site is protected by reCAPTCHA and the Google Privacy Policy and Terms of Service apply.

Hi there! How can we help you?

Contact us using the form below or give us a call.

Send Us A Message:

Do not fill in this field:

This site is protected by reCAPTCHA and the Google Privacy Policy and Terms of Service apply.

Do not fill in this field:

This site is protected by reCAPTCHA and the Google Privacy Policy and Terms of Service apply.

Do not fill in this field:

This site is protected by reCAPTCHA and the Google Privacy Policy and Terms of Service apply.

Do not fill in this field:

This site is protected by reCAPTCHA and the Google Privacy Policy and Terms of Service apply.

$

Do not fill in this field:

This site is protected by reCAPTCHA and the Google Privacy Policy and Terms of Service apply.