Listed by Matthew Lefebvre of Downtown Realty
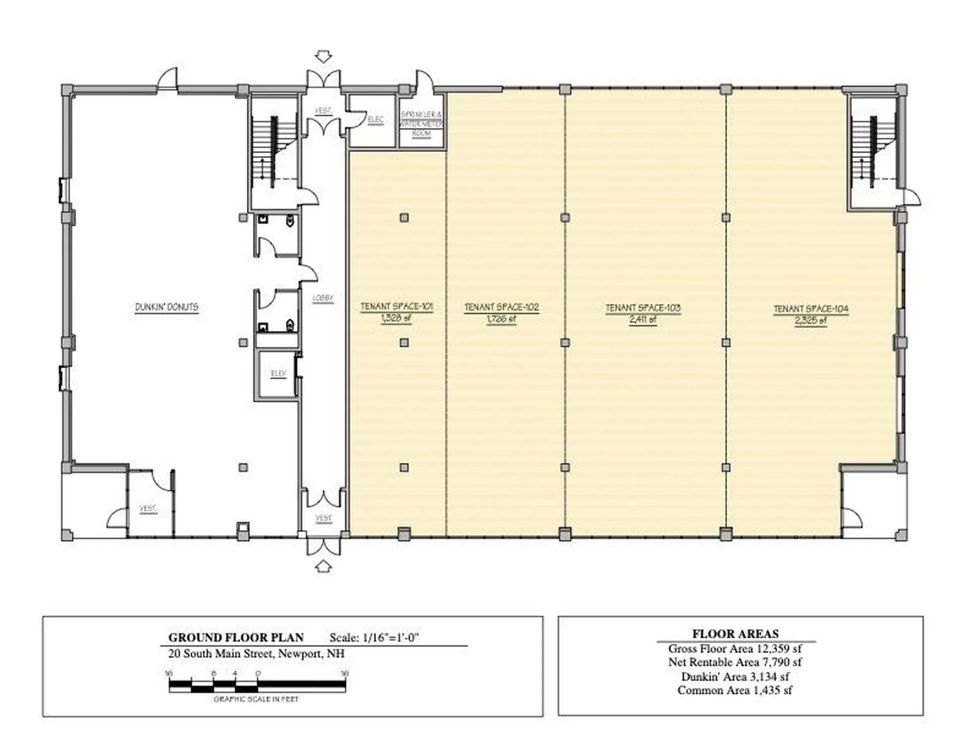
Welcome to 20 S Main Street, the former headquarters of Brampton Mill Co. This mixed-use building is located in the heart of Newport, near the intersection of Route 10, 11, and 103. Anchored by a Dunkin Donuts and a Verizon Wireless store, this location see an average daily traffic count of ±13,400 VPD. This prime retail space offers an unbeatable location at an attractive rate. Total of 5,000 SF available, units are divisible to as small as 1,350 SF. With ample on-site parking of over 75 spaces, flexible I-1 zoning, and landlord to deliver a vanilla box ready unit, this is a versatile location for many prospective retailers looking to be a part of Newport's growing downtown.

Listing Tools

Property Details of 20 South Main Street

Property Details

Map Location

Broker Reciprocity 

Copyright 2025 PrimeMLS, Inc. All rights reserved. This information is deemed reliable, but not guaranteed. The data relating to real estate displayed on this display comes in part from the IDX Program of PrimeMLS. The information being provided is for consumers’ personal, non-commercial use and may not be used for any purpose other than to identify prospective properties consumers may be interested in purchasing. Data last updated November 17, 2025 2:07 AM EST

 

Hi there! How can we help you?

Contact us using the form below or give us a call.

Send Us A Message:

I agree to receive marketing and customer service calls and text messages from Galloway Real Estate. To opt out, you can reply 'stop' at any time or click the unsubscribe link in the emails. Consent is not a condition of purchase. Msg/data rates may apply. Msg frequency varies. Privacy Policy.

Do not fill in this field:

This site is protected by reCAPTCHA and the Google Privacy Policy and Terms of Service apply.

Hi there! How can we help you?

Contact us using the form below or give us a call.

Send Us A Message:

Do not fill in this field:

This site is protected by reCAPTCHA and the Google Privacy Policy and Terms of Service apply.

Hi there! How can we help you?

Contact us using the form below or give us a call.

Send Us A Message:

Do not fill in this field:

This site is protected by reCAPTCHA and the Google Privacy Policy and Terms of Service apply.

Do not fill in this field:

This site is protected by reCAPTCHA and the Google Privacy Policy and Terms of Service apply.

Do not fill in this field:

This site is protected by reCAPTCHA and the Google Privacy Policy and Terms of Service apply.

Do not fill in this field:

This site is protected by reCAPTCHA and the Google Privacy Policy and Terms of Service apply.

$

Do not fill in this field:

This site is protected by reCAPTCHA and the Google Privacy Policy and Terms of Service apply.