Listed by Krissy LaPorte of Keller Williams Realty-Metropolitan
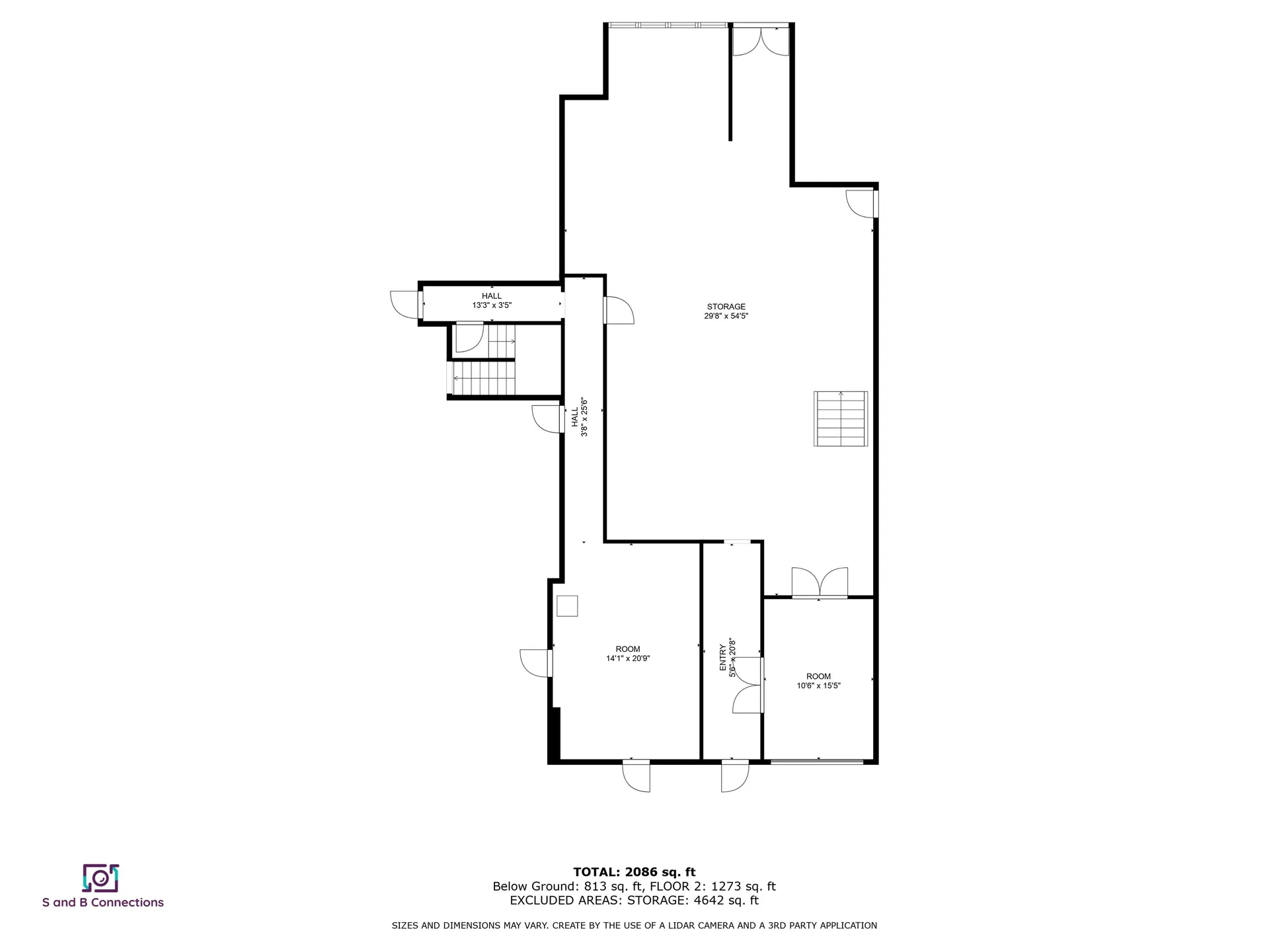
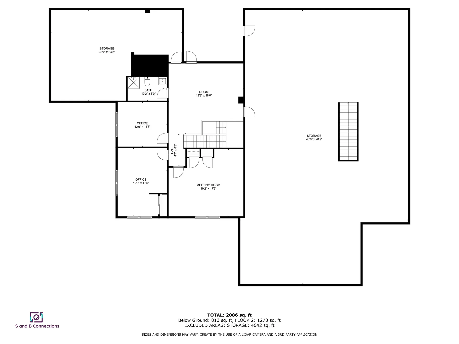
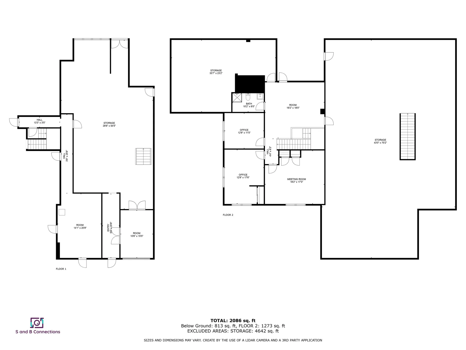
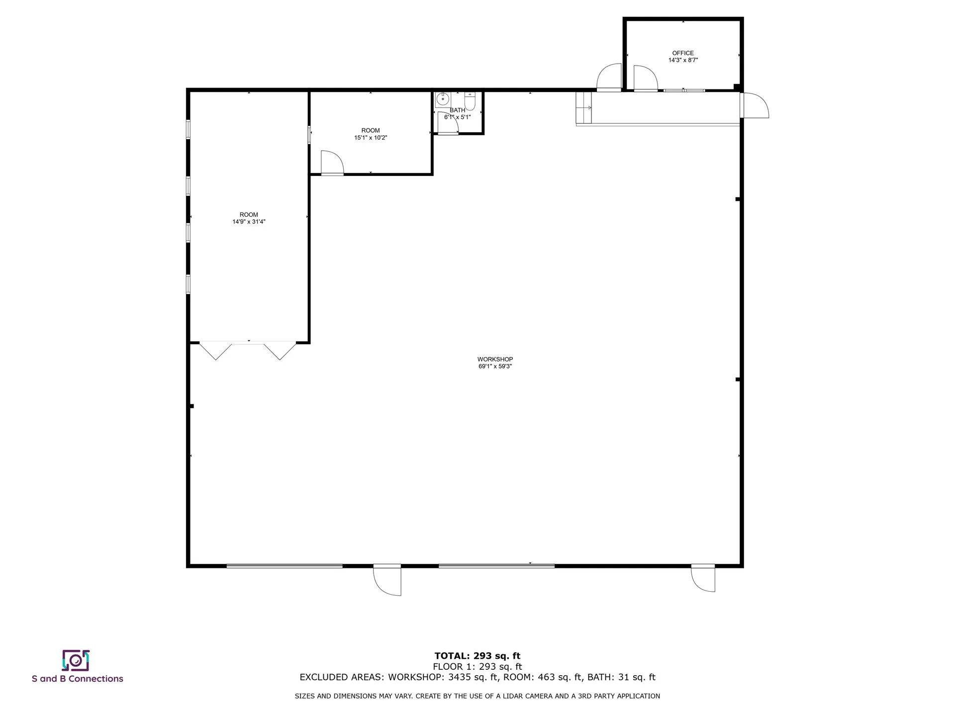
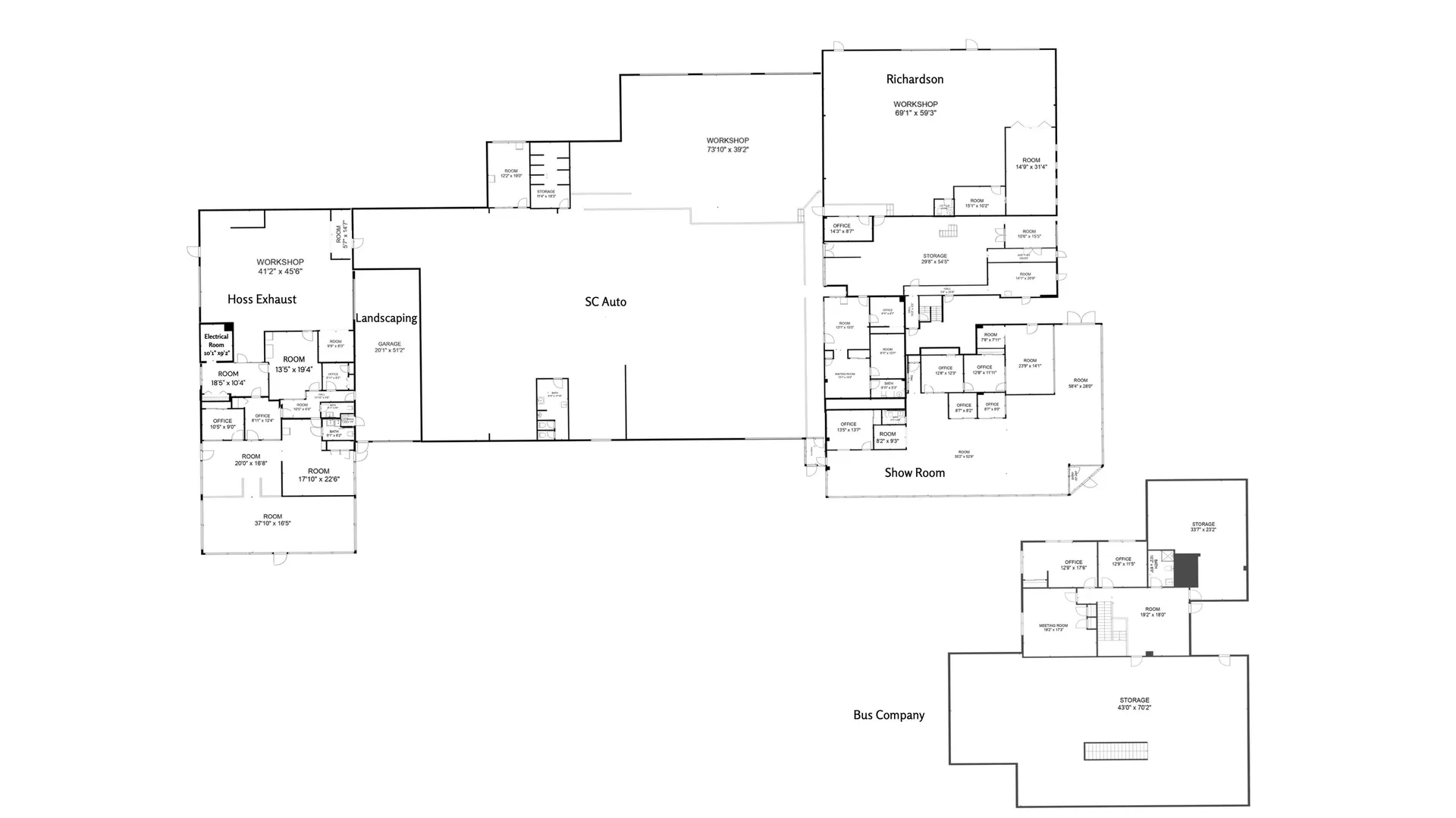
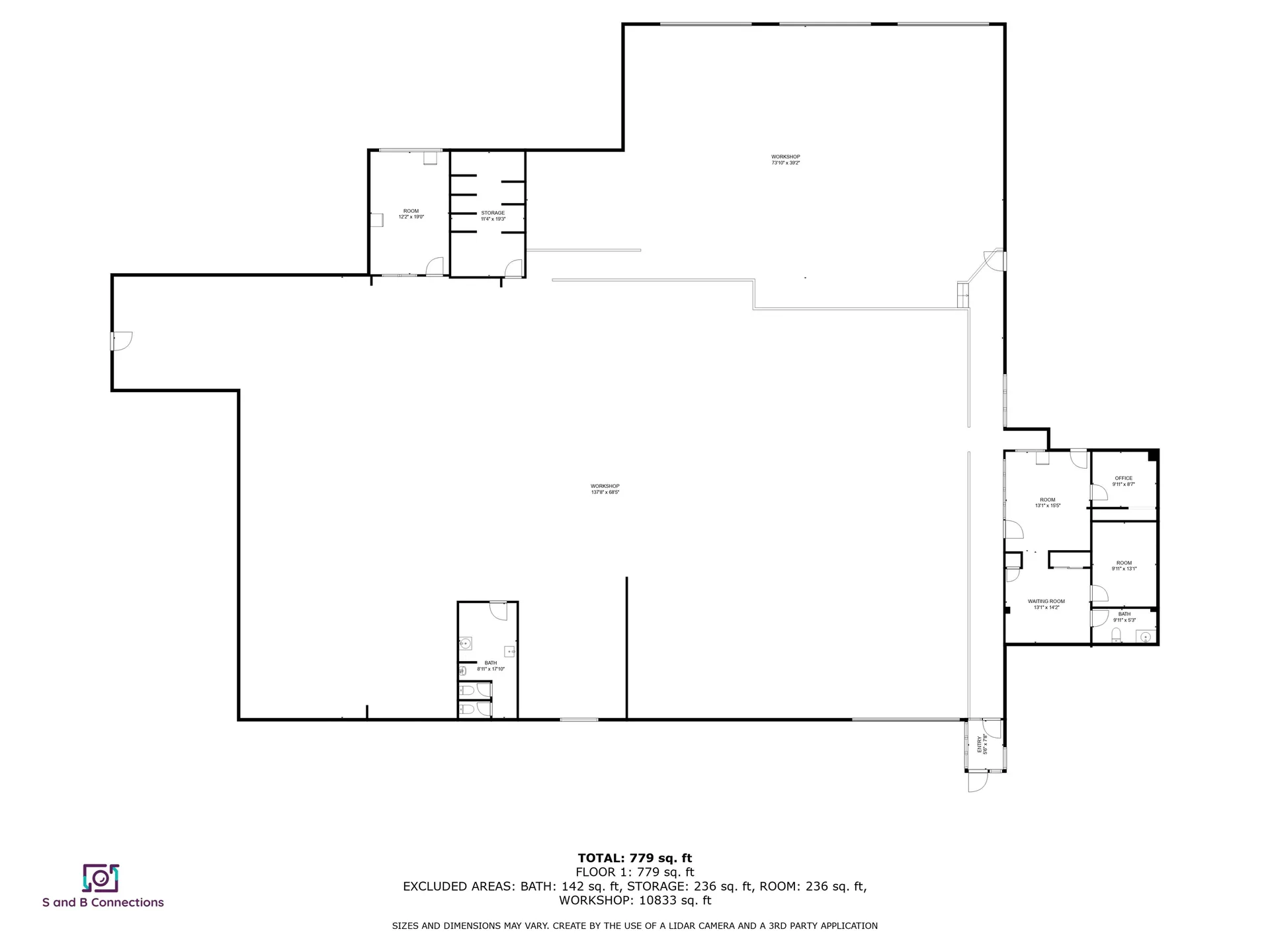
Featuring concrete floors and high ceilings, the building is equipped with 110/220/208 three-phase power, compressed air, HVAC, and LED lighting. It includes loading docks and receiving bays for efficient operations. The paved, well-lit parking lot can accommodate 247+ vehicles, making it ideal for inventory display or customer parking. Additional parking options also available. Recent installations include a forced hot air/waste oil furnace, one tandem axle lift, one single axle lift, a four-post 12,000 lb. lift, and a commercial overhead exhaust system. Offices with multiple configurations are available to suit your administrative needs. This property is ideal for an automotive dealership or service center, equipment sales and service, retail showroom and warehouse, light manufacturing or assembly facility, distribution center or logistics hub, service and parts center, garden center or outdoor retailer, or commercial business incubator. Fully equipped and ready to meet your business needs, this property offers a prime location, extensive features, and significant growth potential. This property is an excellent owner/user investment, offering redevelopment opportunities or expansion options to suit your future growth. The seller and/or agent make no representation as to the accuracy of the square footage. Buyer responsible for their own due diligence.

Listing Tools

Property Details of 166 W Main Street

Property Details

Map Location

Broker Reciprocity 

Copyright 2025 PrimeMLS, Inc. All rights reserved. This information is deemed reliable, but not guaranteed. The data relating to real estate displayed on this display comes in part from the IDX Program of PrimeMLS. The information being provided is for consumers’ personal, non-commercial use and may not be used for any purpose other than to identify prospective properties consumers may be interested in purchasing. Data last updated November 17, 2025 12:52 AM EST

 

Hi there! How can we help you?

Contact us using the form below or give us a call.

Send Us A Message:

I agree to receive marketing and customer service calls and text messages from Galloway Real Estate. To opt out, you can reply 'stop' at any time or click the unsubscribe link in the emails. Consent is not a condition of purchase. Msg/data rates may apply. Msg frequency varies. Privacy Policy.

Do not fill in this field:

This site is protected by reCAPTCHA and the Google Privacy Policy and Terms of Service apply.

Hi there! How can we help you?

Contact us using the form below or give us a call.

Send Us A Message:

Do not fill in this field:

This site is protected by reCAPTCHA and the Google Privacy Policy and Terms of Service apply.

Hi there! How can we help you?

Contact us using the form below or give us a call.

Send Us A Message:

Do not fill in this field:

This site is protected by reCAPTCHA and the Google Privacy Policy and Terms of Service apply.

Do not fill in this field:

This site is protected by reCAPTCHA and the Google Privacy Policy and Terms of Service apply.

Do not fill in this field:

This site is protected by reCAPTCHA and the Google Privacy Policy and Terms of Service apply.

Do not fill in this field:

This site is protected by reCAPTCHA and the Google Privacy Policy and Terms of Service apply.

$

Do not fill in this field:

This site is protected by reCAPTCHA and the Google Privacy Policy and Terms of Service apply.