Listed by Sadie Halliday of EXP Realty (Cell: 603-660-2321)
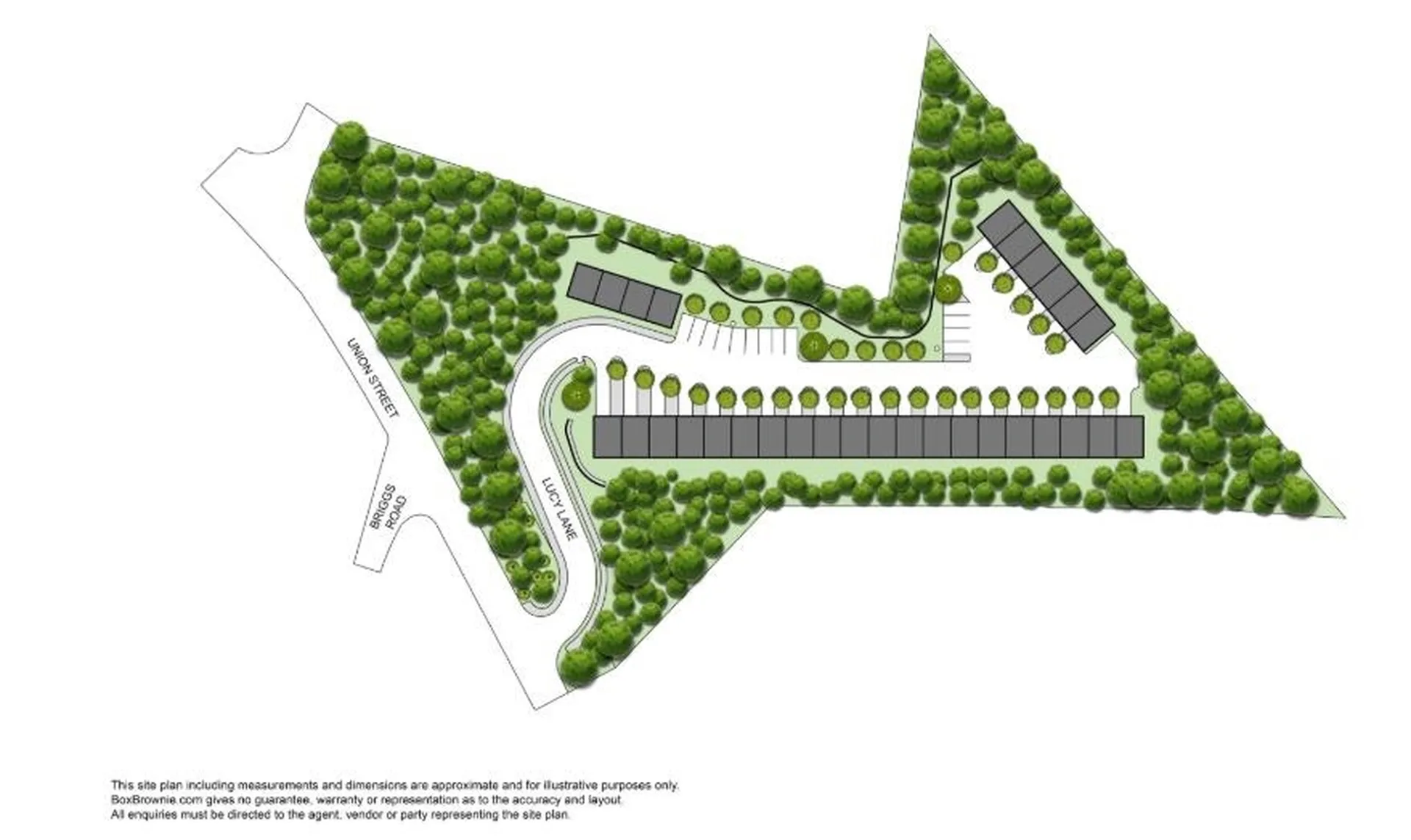
Welcome to Our Town Village, a brand-new townhome community coming to Peterborough, New Hampshire, with first homes ready for occupancy in Spring 2026. Designed for comfort, style, and energy efficiency, these 2-bedroom, 1.5-bath townhomes combine modern finishes with a low-maintenance lifestyle in the heart of the Monadnock Region. The open-concept kitchen and dining area flow into a spacious living room, ideal for entertaining or everyday living. The first floor also features a powder room, generous closet space, and direct access to a ground level garage in select units. Upstairs offers two bright bedrooms, a full bath with direct access from the primary bedroom, and a dedicated laundry room with additional storage space. Located just minutes from downtown Peterborough, residents will enjoy easy access to shops, restaurants, and cultural attractions, plus year-round outdoor recreation including hiking, biking, and nearby Mount Monadnock. Within walking distance, you'll find grocery stores, coffee shops, the town library, parks, and scenic riverside trails, making it easy to enjoy the best of small-town living without getting in the car. Quality construction, thoughtful layouts, and a desirable location make Our Town Village one of the best values for new construction in southern New Hampshire. Do not miss your opportunity to own a brand-new home in this vibrant and unique community.

Listing Tools

Property Details of 1 Lucy Lane

Property Details

Map Location

Broker Reciprocity 

Copyright 2025 PrimeMLS, Inc. All rights reserved. This information is deemed reliable, but not guaranteed. The data relating to real estate displayed on this display comes in part from the IDX Program of PrimeMLS. The information being provided is for consumers’ personal, non-commercial use and may not be used for any purpose other than to identify prospective properties consumers may be interested in purchasing. Data last updated November 8, 2025 11:53 PM EST

 

Hi there! How can we help you?

Contact us using the form below or give us a call.

Send Us A Message:

I agree to receive marketing and customer service calls and text messages from Galloway Real Estate. To opt out, you can reply 'stop' at any time or click the unsubscribe link in the emails. Consent is not a condition of purchase. Msg/data rates may apply. Msg frequency varies. Privacy Policy.

Do not fill in this field:

This site is protected by reCAPTCHA and the Google Privacy Policy and Terms of Service apply.

Hi there! How can we help you?

Contact us using the form below or give us a call.

Send Us A Message:

Do not fill in this field:

This site is protected by reCAPTCHA and the Google Privacy Policy and Terms of Service apply.

Hi there! How can we help you?

Contact us using the form below or give us a call.

Send Us A Message:

Do not fill in this field:

This site is protected by reCAPTCHA and the Google Privacy Policy and Terms of Service apply.

Do not fill in this field:

This site is protected by reCAPTCHA and the Google Privacy Policy and Terms of Service apply.

Do not fill in this field:

This site is protected by reCAPTCHA and the Google Privacy Policy and Terms of Service apply.

Do not fill in this field:

This site is protected by reCAPTCHA and the Google Privacy Policy and Terms of Service apply.

$

Do not fill in this field:

This site is protected by reCAPTCHA and the Google Privacy Policy and Terms of Service apply.